华润置地做四代墅,简直逆天了!

2025-11-11 来源:明源地产研 浏览量:
近两年,房地产供需关系发生了本质变化,高端住宅市场展现出穿越周期的稳定性。

然而,和始终旺盛的高端置业需求相比,供应的产品形态却越来越同质化,尤其别墅领域已经多年没有创新,这种供需错位让人感到可惜。
所幸,行业仍然有破局者,比如华润置地。今年华润置地结合四代宅标准与住宅低密化的趋势,确立了“四代墅低密产品战略”,并在此之上推出了全新的“四代墅”产品序列——“园”系。
据悉,“园系”目前是华润置地内部最高阶的产品系。关注高端市场的朋友们相信已经听过上海的士林润园项目,这是华润置地的第一个“园系”代表作,以其一墅一定制的超配产品力,引发了市场的热烈反响。
近期,明源君注意到“园系”产品又有新作面世,它是坐落在北京中央墅区、温榆河头排的北京润园。这个项目的容积率只有1.01 ,是北京罕有的真正低密墅区。
北京润园延续了“园系”的顶豪基因与先进产品理念,以TOP房企满规格的投入决心打破了别墅领域的创新空白。
在明源君看来,北京润园构建的7维价值体系,正在重新构建当代别墅的新标准,我们详细来看。

PART 01


让建筑浸润于自然 
最大化激活低密价值


谈到别墅项目,最直接能想到的就是由低密度带来的私密性、领地感。
但过去的一些别墅产品过于强调封闭性、私密性,建筑与环境过于割裂、独立,忽略了人对自然的亲近本能,以及生态环境对于人的滋养作用。
尤其是对于事业忙碌的塔尖客群来说,在与自然的接触中获得小憩的“小松弛”时光是非常宝贵的。
所以四代墅体系果断打破了这种传统理念,追求以人为本的适度开放,尽可能多的在户型中创造“松弛点”。
北京润园通过对庭院系统、露台规划与引光手法等细节的创新设计,展现出了在四代墅时代下,低密度优势更加极致的呈现。
其产品形态向行业展现了一个事实:做出在空间上既私密又亲自然的房子,完全是可行的。
我们可以来看三个细节。

一是打造极致包裹感的庭院体系。
北京润园的庭院景观,充分利用了低密墅区的规划发挥空间,先做景观规划再做建筑设计,可以说是四代宅“自然建筑”理念的教科书式落地。
一方面,其将社区内的水系景观结合外部温榆河公园,进行了过渡设计,呈现出引水入园、内外交融的景观呼应感,让水“活”了起来。
图片
北京润园效果示意图

图片
北京润园效果示意图
另一方面,项目还打造了一溪一环三轴九境的多组团景观节点,形成有机联结的绿谷景观带,每一户的归家动线都能观赏到丰富的景致变化。
图片
北京润园效果示意图
在北京润园,景观并不是用于对建筑进行简单围合、制造封闭性的工具;而是有机包裹着建筑,能和居者进行亲密互动的生态组成。
这样的规划手法下,营造出了房子是从自然生长出来的浸润感,将低密墅区的景观充沛性完全铺满了。

二是空间重构,通过露台满配设计,弱化室内外边界,强化人与自然的融合。
北京润园在庭院体系上的突破,重构了景观与建筑的关系。而到了户内,他们甚至做的更加极致,把露台空间的价值发挥到了最大。
图片
北京润园效果示意图
比如下面这个约328平方米的平墅产品,做出了惊人的三联全景舱大露台,观景面总长达到了约21.4米
图片
这还不算完,下面这个约329平方米的空墅更夸张,三面环绕式的三联全景舱长达近22米,且打开了户内270度无间断的多重观景面,形成了私家专属的奢阔星空露台
图片
住在这样的房子里,基本上步步是露台,庭院近在咫尺。虽然这两种产品是平墅和空墅,但却可以享受到“没有天花板”的独墅体验,居住舒适性、通透性直接拉满。
而这个约990平方米的院墅产品,更是拥有私属的多重立体院落,每一层都配备了亲自然空间。
比如首层的私家庭院、二层的观景阳台、三层的约14米宽全景大露台…
图片
北京润园效果示意图
融合了多重亲自然空间的户型结构,具有超强的景观互动性,重构的是居住与自然的关系。人要亲近自然、感受绿意,不必到花园去,因为花园就在家中。

三是无界光感,创造向阳而生的愉悦日常。
光是植物生长的重要源泉,但实际上人也一样。光环境的好坏,可以决定一个人、甚至是一个家庭的幸福感。
在低密墅区中,自然光的引入条件理应更好。但过去许多别墅产品都忽略了这个生活中最基本的自然要素。
为了让业主能更充分、更长时间的享受自然光,北京润园在引光手法上着实是下了一番功夫。
比如约271平方米的平墅产品,做出了长达17米的四面宽结构,充分打开了户内采光面。
而约328平方米的平墅,还打造了IMAX全景转角窗,叠加超长露台设计,大幅提升了自然光的引入面。
图片
北京润园效果示意图
约990平方米的院墅则更加奢侈,其本身就具有超大楼间距,还打造了多重光厅。在光照向来匮乏的地下层,则打造出了地下庭院、天光泳池等引光空间。
图片
北京润园效果示意图
这样就在垂直方向上强化了自然光的透入程度,在家中的每一个角落都能充分享受到自然光环境,让光能肆意穿过空间、滋养日常。

PART 02


以人为本重构尺度 
户型布局从主次分明走向家庭共鸣


明源君曾在过去的文章中分析过,不少所谓的“豪宅”产品,把设计焦点全都放在了客厅和主卧部分,而小孩房、老人房等只能获得“次等”资源。
这种空间与资源分配策略如果放在刚需户型中,是可以理解的。但放在尺度阔绰的豪宅产品中,就是一种严重的需求错位。
据了解,华润置地经过多轮调研发现,受过高等教育、具有国际视野的高端置业群体,具有更强烈的重视家族、平等教育、独立自主的进步价值观。
他们对过去的那些“偏心”户型普遍评价不佳,认为那和自己的价值观完全是背道而驰。
所以在华润的四代墅体系中,奢阔只是最低门槛,客户观念与空间结构的融合才是更重要的,尤其是以上这种“家庭平权”观念的落地,我们来看看具体是怎么做的。

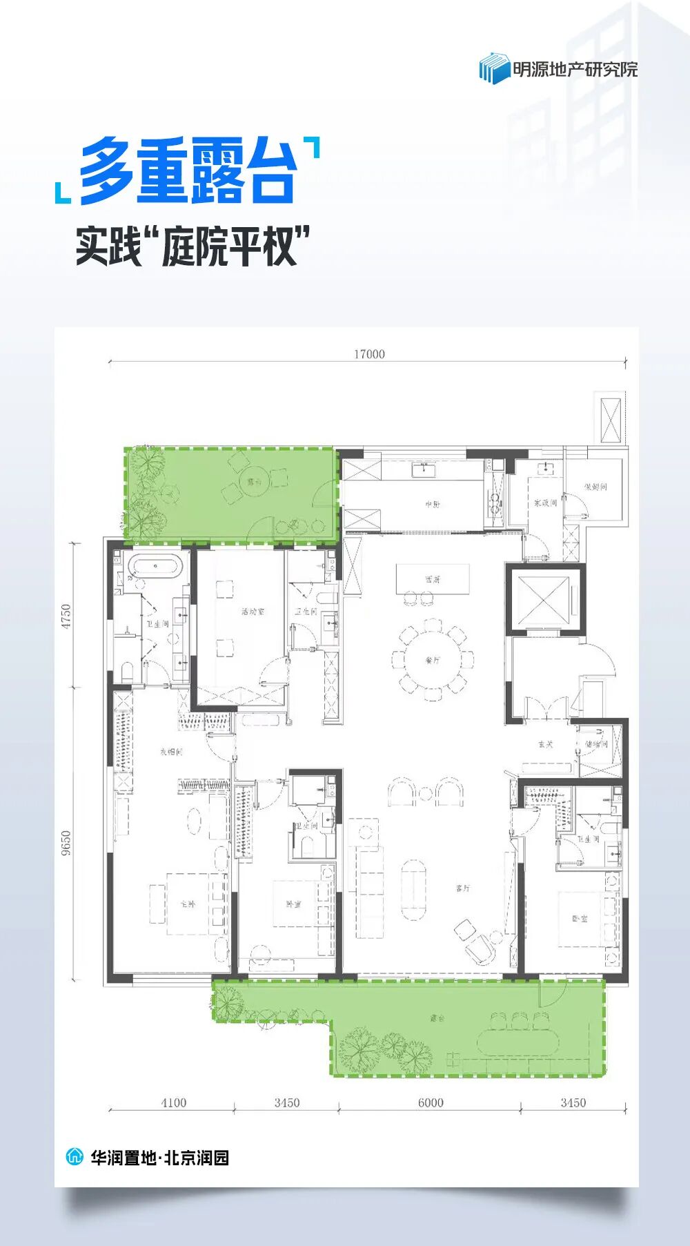
一、庭院平权,一屋一景。
前面我们已经拆解了北京润园的景观优势,在以往,这种优势资源会优先给到主卧或客厅。
但北京润园不做选择,而是完全颠覆了过去做豪宅的手法,通过多重露台来实践“全都要”的庭院平权理念。
从约271平方米平墅产品中我们可以看到,它不仅拥有南北双露台,而且连次卧都有自己的一块露台空间,用于小憩、休闲。
图片
而约329平方米空墅就更直观了。
一方面首层三面包裹的三联全景舱,为客厅、餐厅和多功能房都配置了一个阔绰的露台延伸空间,可以根据不同的生活场景需要,布置成各类功能“盒子”,比如客厅外的酒会阳台、餐厅外的露营烧烤区、玄关外的阳光阅读区等等……
另一方面,二层的每个卧室也都配置了露台,家庭成员有专享的亲自然空间,可以根据自己的喜好去布置,而不必非要与家人共用。
图片

图片
北京润园效果示意图

二、卧室平权,一屋一天地。
刚才明源君也说了,许多所谓的豪宅产品,其实给到次卧的空间和资源都严重不足。
北京润园已经把这个问题彻底解决,所有户型的卧室都采用了套房配置,尺度舒适、功能完整,真正让家从“主人尺度”走向了“家庭尺度”。
比如这个约271平方米的平墅,就是完整的全套间配置,每个卧室都是小家化的布局逻辑,起居独立互不干扰。
图片
又比如约329平方米空墅,不仅有全套房配置,而且还在主卧做了两个独立、完整的衣帽间,卫浴也是双盆配置,确保功能独立,男女主人都能有专属的起居梳洗功能。

图片

图片
北京润园效果示意图
而约990平方米的院墅则在此基础上更进一步,直接实现了“一层一代”、分层小家化的功能规划。
比如老人房就安置在首层,以照顾老人方便出入、喜爱庭院种植、上下楼不便等需求。
图片
而二层则定位为孩童层,儿童房、家庭图书馆、兴趣屋、活动阳台等功能都可以放在这里,确保孩子充足的日常活动空间,并容纳他们多种多样的兴趣爱好。
图片
三层则是主人层,双卧、双衣帽间与双洗漱台的配置,无不展现着四代墅的平权主张。同时,这一层仍然安排了一个大尺度的兴趣房。
图片
可以看到院墅产品的每一层,都有独立完整的起居、休闲与兴趣空间,上下楼在互不干扰的情况下,可以完全容纳各家庭成员的生活方式,实现社交、娱乐分层。
这样的设计,可以说是对于客户家庭平权与兼容需求的极致回应。
图片
北京润园效果示意图

三、公区平权,盛放更多元的家庭生活方式。
明源君注意到,北京润园的户型,在动区和部分静区都采用了无柱化设计,并且全户型都采用了双厨双餐厅的配置,将空间组合的自主权交还给了业主。
这样一来,业主在生活功能的偏好上完全不用将就,可以在更长的时间周期内根据实际需要,去改变家的布局。
比如这个约328平方米平墅户型,可以自由组合从多功能房到客厅的整个动区空间,还可以根据实际家庭结构,将北侧的两个次卧进行合并或分隔。
图片
又比如中西厨的完全独立,能满足家庭成员不同的烹饪及用餐喜好,从而容纳更丰富的家庭欢聚场景。
这几年餐厨C位的概念越来越普及,中西双厨的配置显然能够更好的推动这个概念的落实。通过功能更多样化的厨房配置,以及LDKB一体化的空间,能更好的为家庭创造相聚机会。
图片
北京润园效果示意图
总体来看,北京润园的空间创新,能够让即使是追求“平权”的家庭,也能达到既有边界感、又有向心力的奇妙平衡。
这也是当代家庭观与产品形态的统一,明源君认为一定会成为长期趋势。

PART 03


细节中的理性奢华 
产品从配置思维向服务思维进化


在买方市场和好房子时代下,只有奢材堆砌却缺少需求洞察的产品,已经属于偷懒做法了。
如何让精装从冷冰冰的配置,转向真正服务于人的功能,是房企们这个时代最重要的课题之一。
北京润园给出的解法,是成为奢华之上的理性实用主义者。在保持用材超配投入的基础之上,以居住者的视角仔细打磨功能性。

一、空间高获得感,实现种树自由。
户型的得房率越高,基本就等同于功能兼容性越高。
在这方面,北京润园是挖掘到了极致。通过对多重露台、入户玄关等空间的挖掘,所有产品都能实现超高获得感的室内空间
而院墅就更奢侈了,除了总赠送面积高达约140-210平方米之外,还拥有超大的占地面积,单户平均容积率只有0.66,直接实现庭院种树、赏园自由,最大化延展居家生活的可能性。
图片
北京润园效果示意图

图片
北京润园效果示意图

二、高定精装,审美与品质均以大师级标准实现。
在住宅领域,装修这件事向来是个老大难问题。
业主自己装吧,装修队的水平良莠不齐,很容易导致最后成果差强人意;开发商统一装吧,不仅风格雷同,而且也很考验开发商的设计审美。
结果北京润园直接大手一挥:“全部让设计大师来把关不就行了?”
没错,北京润园所有户型的精装,都有顶尖设计师的参与。哪怕是小到像门把手这样的细节,也是孟德仁、李佩卿等设计大师的作品。

图片
北京润园用材示意图
更别说设计风格与奢材奢石的用料把关了,全都是定制级别的手笔,确保每一户都有顶尖的审美和品质,直接从源头解决问题,这实在是出乎明源君意料。

三、尊贵归家+精研收纳,兼顾奢华与实用。
在归家体验上,北京润园把别墅应有的尊贵感做足了。
不仅全户型都配备了私家电梯,独门独院入户,院墅产品更是享有五重玄关归家礼序,同时也拥有自己的私家车库,独享3-5个车位空间,真正的塔尖排面。
图片北京润园效果示意图

图片
北京润园效果示意图
图片
北京润园效果示意图

图片
北京润园效果示意图

另一方面,北京润园还引入了日本与香港的先进收纳体系,每户都配备了800库+步入式归家衣帽间,从回家那一刻就彻底解决繁琐的归纳问题,以极致的功能性,保持归家环节的优雅与简洁。


结语


当下的高端住宅赛道越来越拥挤,但标准却越来越模糊。所幸还有如华润置地这样的产品主义者,在每个领域中坚持突破和创新。
明源君认为,北京润园这部作品既是豪宅价值的回归,也是人居标准的突破。其以近乎全能的7维价值打造力,“卷”出了低密别墅产品的新高度与新形态。
据悉,北京润园未来还将搭载“T+礼仕”管家服务体系,为业主构建塔尖圈层社交club。这座“园系”新品将给北京中央墅区、乃至于全国别墅市场,带来怎样的新面貌?实在值得期待!


网站首页 拨打电话 在线地图 回到顶部